2024

This project, titled Interior Topographies: A New Ethology of Spatial Occupancy, began with an assignment to select an object and examine its function through an abstract and critical lens. A wheel was chosen for its layered symbolic meaning, particularly as a representation of movement, infrastructure, and connectivity. In the context of Knoxville, the wheel reflects the city’s reliance on automobiles and roadway systems, serving as a tool that enables daily travel and connects neighborhoods, programs, and social networks. By focusing on the wheel as both a functional and conceptual object, the project explores how systems of mobility shape patterns of spatial occupancy and influence the way people experience and navigate the built environment.

INTERIOR TOPOGRAPHIES


An abstract model illustrating the dynamic and chaotic nature of the site.

Midjourney Images

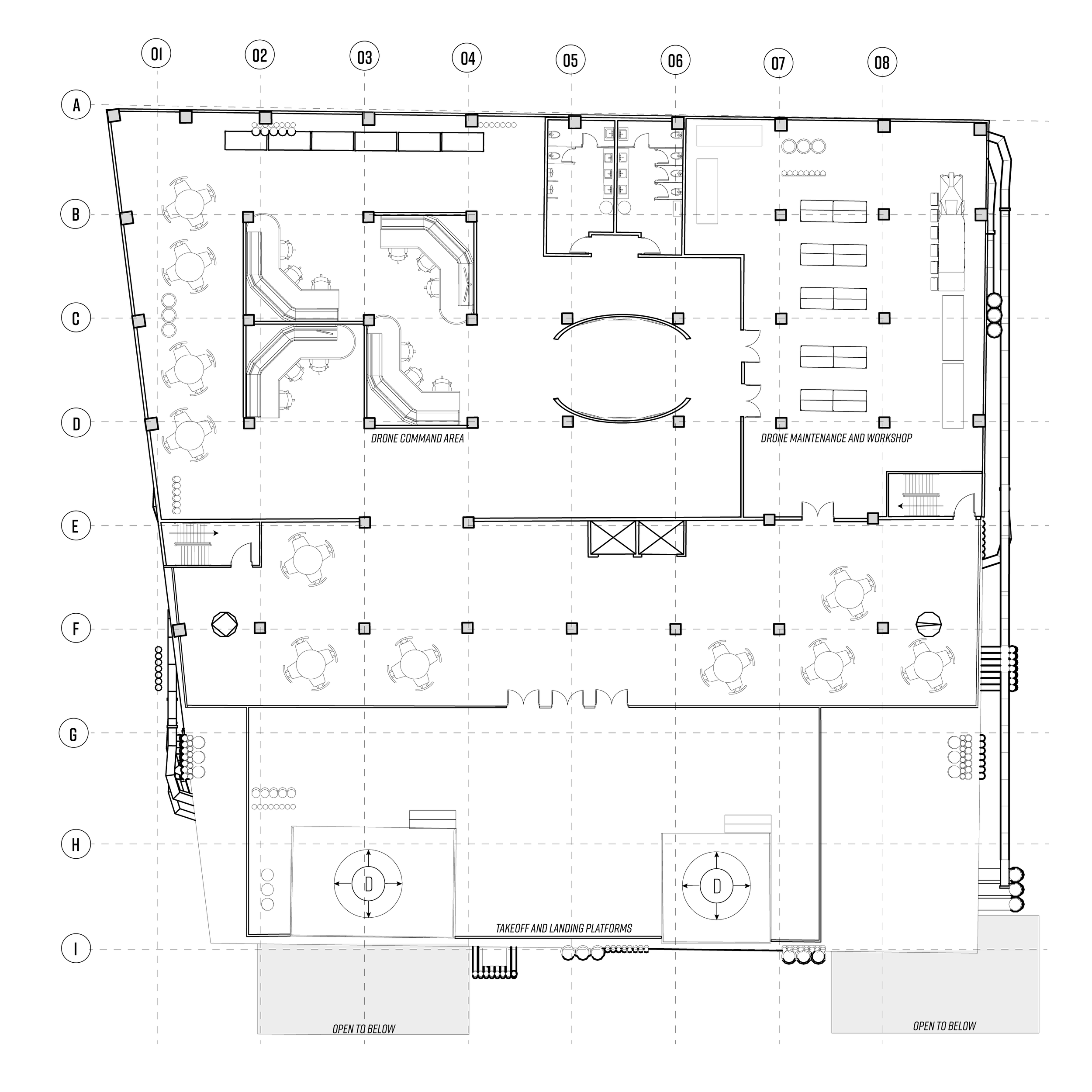
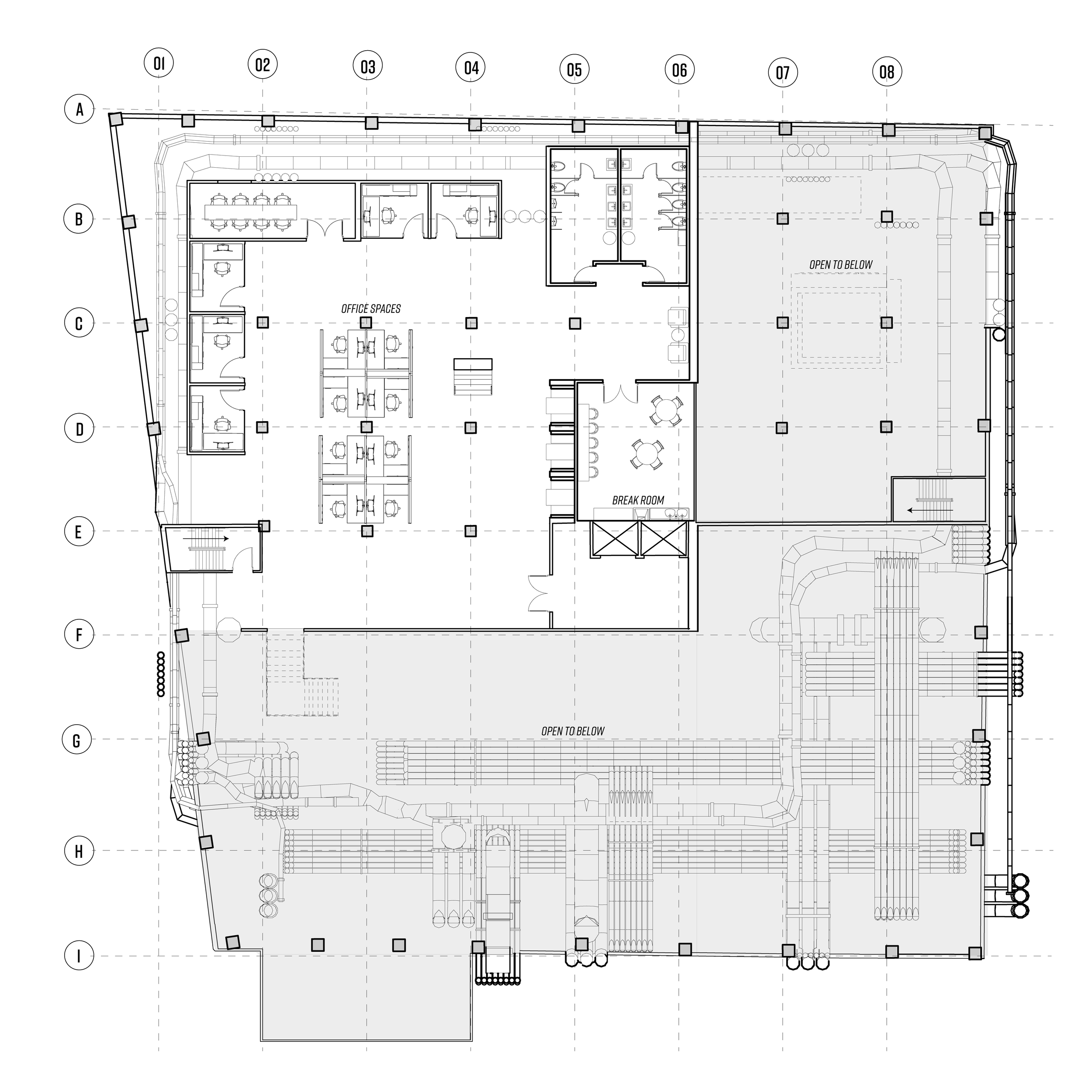
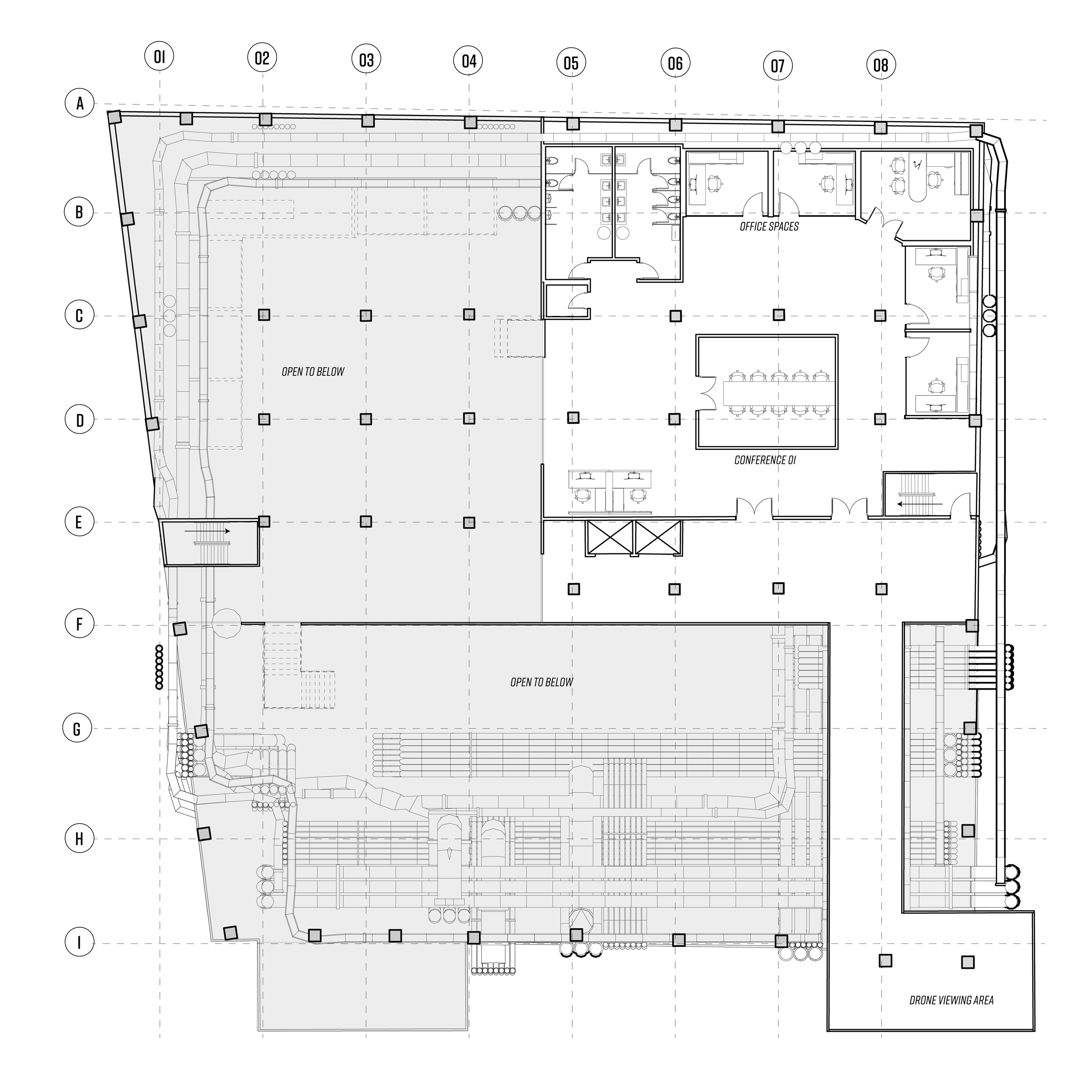
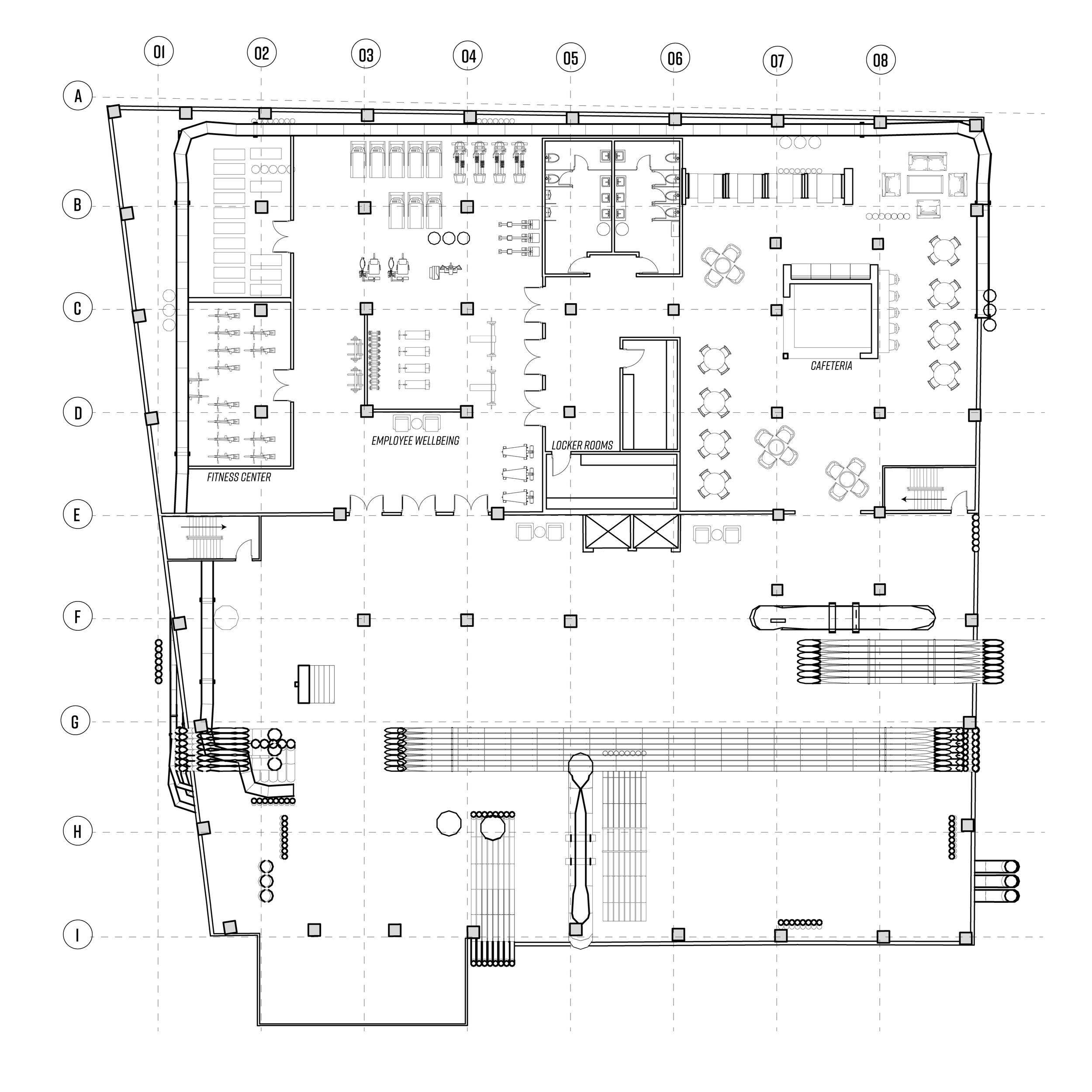
After completing multiple site analyses of Knoxville transportation, the project progressed to designing a building travel system that represented movement and connectivity throughout a space. Using Houdini and Midjourney-inspired imagery, a network of pipes was created to symbolize transportation and circulation. The second phase of the assignment focused on designing an Amazon Air Fulfillment Center that included office spaces, control rooms, and storage areas. In addition, a conceptual object was developed and placed within the facility to enhance both functionality and aesthetics.

LEVEL 3

LEVEL 4

LEVEL 5

LEVEL 6

This work includes detailed floor plans, along with sections, renderings, and axonometric views that emphasize the role and importance of each space. The Centre Pompidou served as a primary inspiration, particularly its exposed pipe systems and the way circulation is expressed throughout the building. Similar to how Knoxville’s transportation network connects different parts of the city, this concept was translated into the design to express movement and connectivity. The sectional chunk model render illustrates how the pipe system travels through and activates the space.

Exterior Render

Interior Render

Section Chunk Model

The pipe network in the model functions as a transportation system, similar to HVAC infrastructure, and is integrated throughout the entire structure to express connectivity and flow, key ideas developed during the initial research and conceptual phase. This sectional render illustrates how each floor transitions from storage and operational areas to offices and control spaces, while also demonstrating circulation throughout the building and the continuous integration of the pipe network.

Previous
Previous

Baker Center

Next
Next

Furniture Design