BAKER CENTER

2024

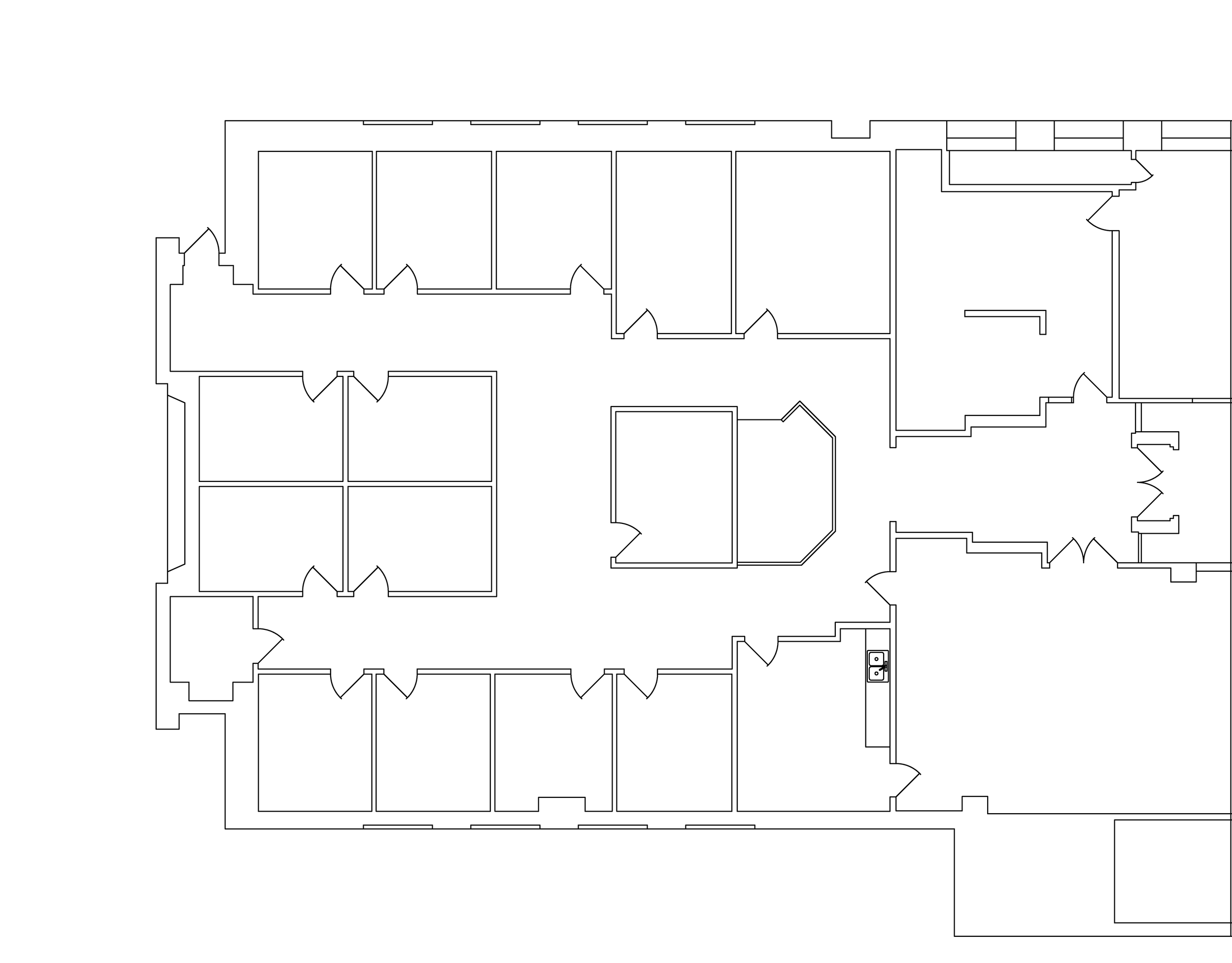
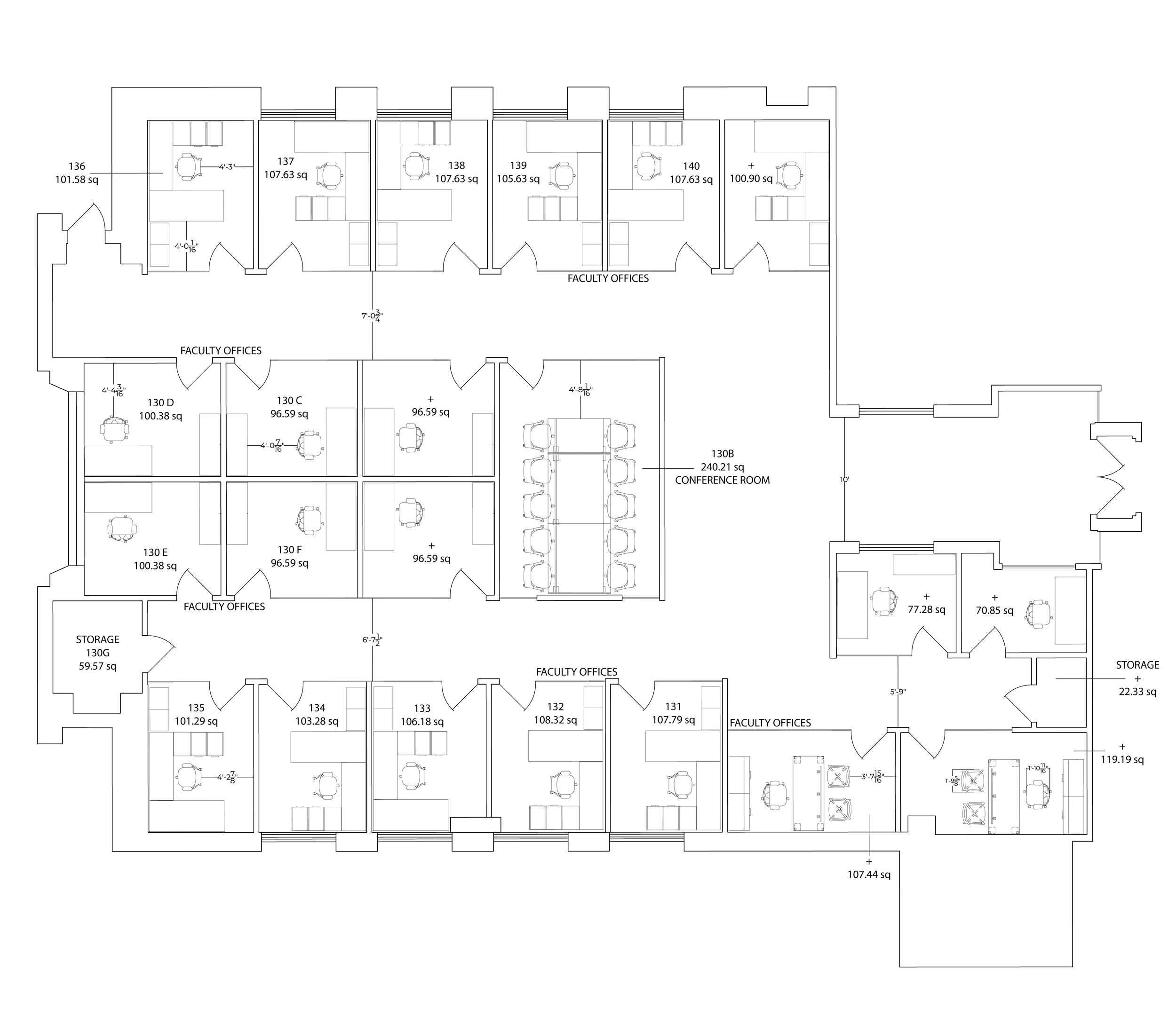
This studio collaborated with the University of Tennessee’s Baker Center School of Public Policy and Public Affairs to support the renovation and reorganization of their building, improving functionality and comfort. The scope of this portion of the project focused on renovating the first-floor faculty offices. A comfortable and well-lit work environment is essential for faculty, yet the Baker Center faced challenges due to a lack of offices, resulting in shared workspaces and several interior rooms without access to natural light. This proposal addresses those issues by reconfiguring existing walls and introducing new windows, allowing for the addition of seven offices while significantly improving daylighting and overall functionality of the space.

Existing floor plan with a total of 13 offices.

Proposed layout accommodating 21 offices.

These renderings aim to present a more professional and contemporary office environment. While the existing building carries a strong institutional character, the redesigned space prioritizes comfort for faculty who primarily use their offices outside of teaching. Reconfiguring the layout to incorporate windows and glass office walls allows natural light to flow throughout the space, bringing daylight into centrally located offices while maintaining privacy through the use of frosted glass. A modern design approach, featuring ambient lighting and a palette of neutral colors and textures, enhances brightness and creates a more welcoming and comfortable work environment.

During this assignment, the studio visited CBI Workplace Solutions in Knoxville, TN, to learn about MillerKnoll and the process of generating CAD files for specific projects. AutoCAD was used to produce the drawings and to integrate MillerKnoll furniture into the design.

Previous
Previous

Student Aquatic Center

Next
Next

Interior Topographies