CONSERVATION FISHERIES

2025

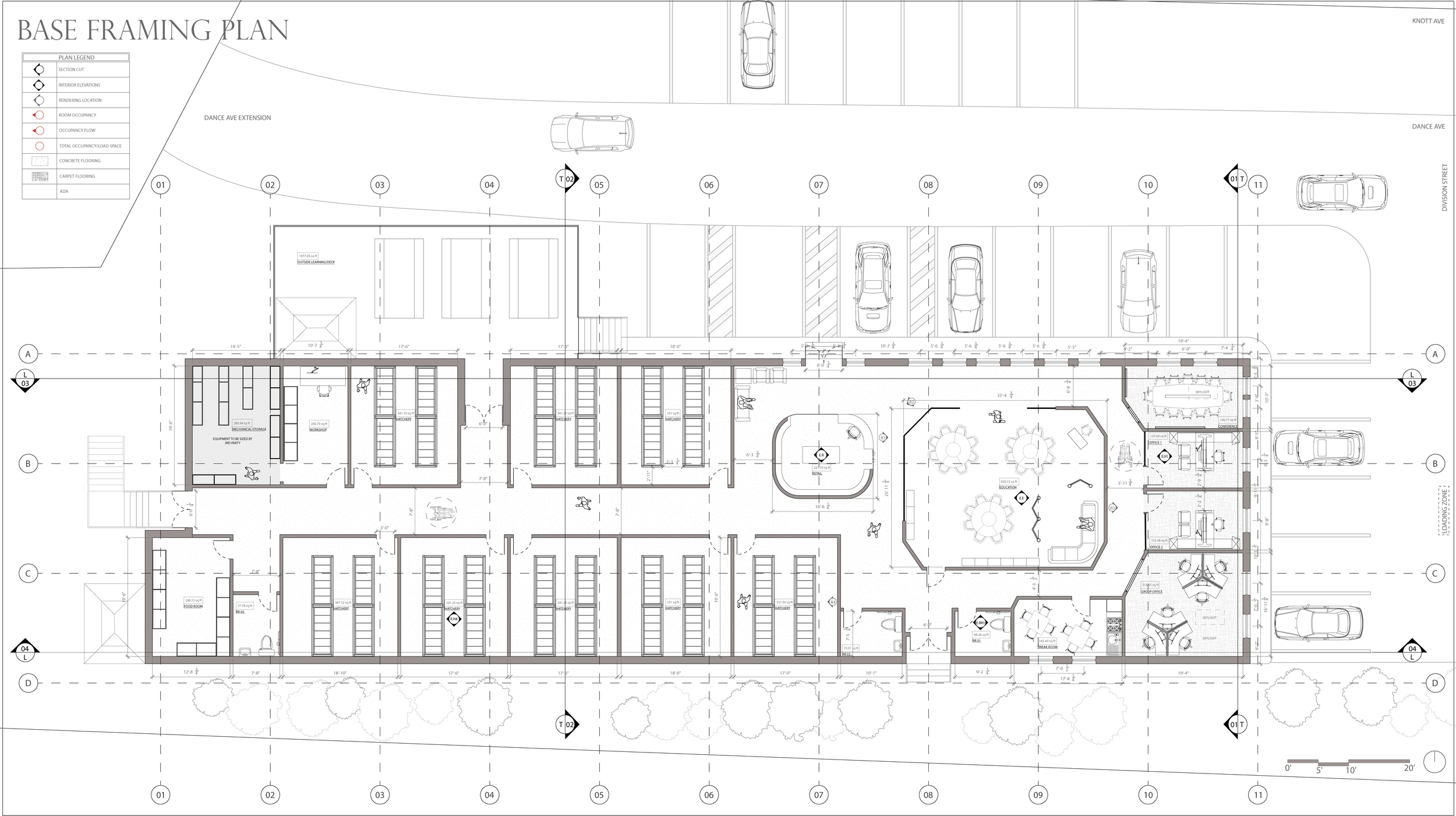
Conservation Fisheries, Inc. works to preserve aquatic biodiversity by restoring fish populations affected by human activity. The hatchery currently propagates over 80 species of non-game fish across 850 tanks holding 20,000 gallons of water. After a site visit, the facility was evaluated to identify needs for additional workspace, tanks, offices, and educational areas, while also considering the surrounding ecosystem and infrastructure to support sustainability and CFI’s long-term mission.

This detailed section drawing illustrates the proposed addition of a conference room, private offices, and a shared group office to support Conservation Fisheries’ need for increased employee workspace. The section highlights the spatial organization of the offices beneath a pitched roof system with exposed wood trusses and skylights that bring natural light into the interior. Drop ceilings are used in select areas to define workspaces and accommodate lighting and building systems, while higher ceilings create a more open and collaborative environment. The drawing also includes detailed wall and roof assemblies, showing insulation, cladding, and structural elements, as well as flooring conditions and the relationship between the interior spaces and the surrounding exterior walkway.

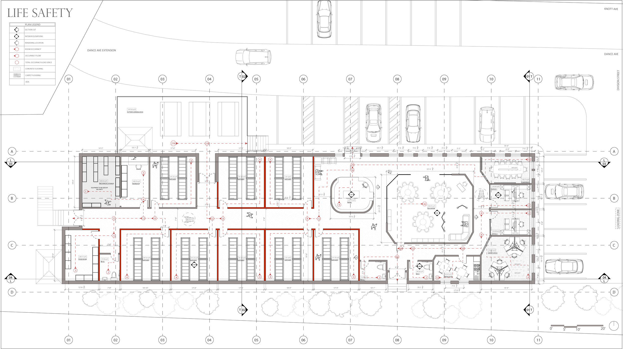
The studio project focused on construction-level design with an emphasis on precision and detail. A comprehensive plan and sections were developed to optimize workflow within the conservation fisheries facility by grouping office spaces and placing hatcheries in dedicated rooms nearby. The layout supports efficient circulation, clear functional zones, and smooth coordination between administrative and operational areas.

Click here to view construction documents.

Material selection focused on balancing function with an earthy, cohesive atmosphere. Soft materials like carpet were used in office areas for comfort and acoustics, while durable finishes such as concrete were chosen for hatchery spaces to support maintenance and high traffic. Natural textures and neutral tones define each area while maintaining a grounded, organic aesthetic.

Next
Next

Student Aquatic Center